Candidato 3 del proyecto para el concurso de Embajadores LED de Philips
¡VOTACIONES FINALIZADAS!
¿En qué consiste el Concurso "Embajadores LED" de Philips? (Haz click)
Antecedentes y objetivo
Proyecto de eficiencia energética para la iluminación de las oficinas de la gerencia municipal de urbanismo en Sanlúcar de Barrameda (Cádiz).
El edificio que ocupa las oficinas de la Gerencia Municipal de Urbanismo fue objeto de un proyecto de remodelación y ampliación del mismo durante los años 1997 y 1.998.
Se inaugura la Gerencia Municipal de Urbanismo a principios de 1998, fecha en la que se puso en funcionamiento tal Entidad Pública e independiente en sustitución de la anterior Delegación Municipal de Urbanismo.
En aquél año, las instalaciones para la iluminación fueron diseñadas y realizadas según los criterios que definía como válidos el Comité Español de Iluminación. Después de 18 años en continuo funcionamiento y dado los avances introducidos en materia de reglamentación con el vigente Reglamento de Eficiencia Energética, así como las normas que indica el Código Técnico de la Edificación en sus documentos Básicos, urge la necesidad de adaptar y sustituir la instalación de iluminación para cumplir con lo preceptuado en materia energética, intentando conservar la calidad y los niveles medios de iluminación.
El objetivo de este estudio es el de exponer los datos mas representativos que sirvan de base para la elaboración del proyecto, así como evaluar el estado actual de las instalaciones de iluminación y contrastarlas con un estudio actualizado incluyendo en el mismo los materiales necesarios, fabricados con nuevas tecnologías mas eficientes de tipo LED.
Emplazamiento
El edificio se encuentra situado en la Calle Baños, nº 8, emplazado en una zona del casco histórico de la Ciudad, frente al edificio protegido que sirviera por el año 1.900 como antiguas cuadras del Palacio de los Duques de Monpensier.
Descripción del edificio
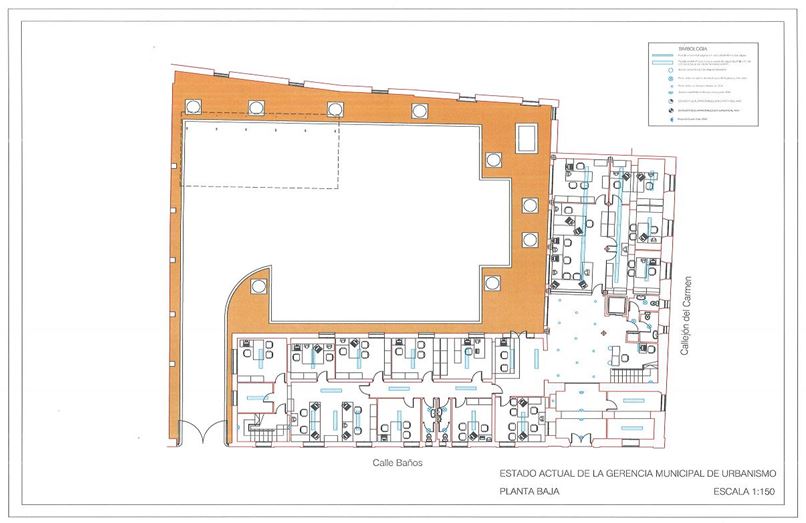
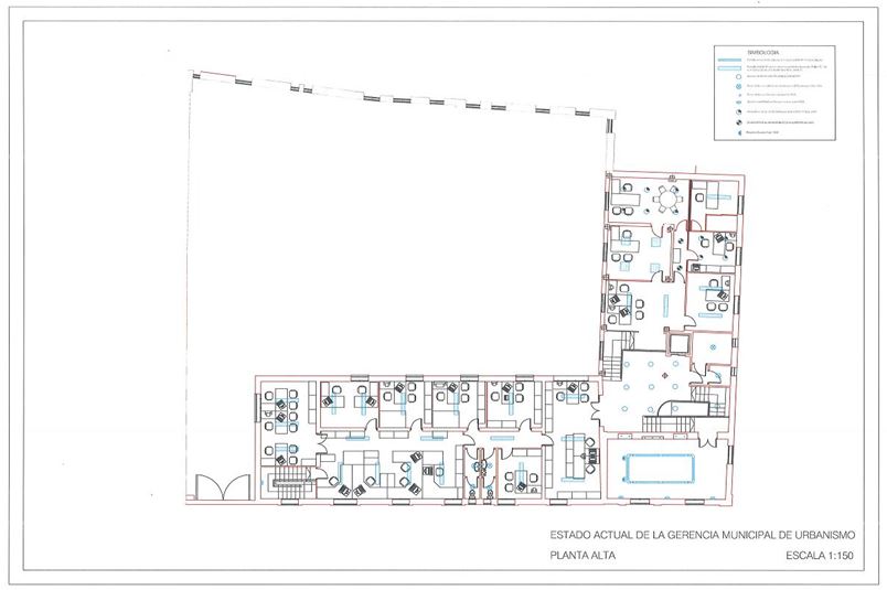
El edificio, en forma de L, tiene dos plantas con aproximadamente 383 m² cada una, con lo que tenemos 766 m² de oficinas. La distribución por departamentos se realiza en cada ala del edificio. Así, tenemos que en planta baja se encuentra en el ala de la izquierda el Dpto. de Licencias y Disciplina Urbanística. El ala de la derecha, al frente, lo ocupa el Dpto. de Administración General. Ya en planta alta, el ala de la Izquierda lo ocupa el Dpto. de Planeamiento y Gestión junto con el Dpto. de Proyectos y Obras, ocupando el ala de la derecha el Dpto. de Gerencia y Secretaría, así como una zona dedicada a Informática. Existe igualmente en planta alta y en una cota superior a la misma un salón de reuniones.
Descripción de la instalación
El sistema general de iluminación se proyectó por el que suscribe, en el año 1.997, con pantallas Philips de 2x58W AF, siendo éstas del tipo TC 198 con óptica C6 para montaje superficial. Los tubos fluorescente son de la misma firma para 58W de potencia, color 84. Estás pantallas y sus lamas, después de 18 años de funcionamiento normal, se encuentran en óptimas condiciones, con la salvedad del exceso de potencia necesaria en comparación con nuevas tecnologías de tipo LED. No hubo de ser sustituido ningún tubo fluorescente ni cebador durante los 8 primeros años de funcionamiento, lo que supone una media de 13.000 horas de funcionamiento, tiempo mas que suficiente para determinar la calidad del conjunto.
En los departamentos iluminados con Downlight de 2x18W no ha sido necesario reponer lámparas en el mismo espacio de tiempo de la anterior. Aunque éstos aparatos ya si que sufren un deterioro considerable que hace necesario la sustitución por nuevas tecnologías.
En el acceso de planta baja había aparatos con lámparas dicroicas de 12V/50W, los cuales fueron sustituidos por otros de tipo LED.
En general, lo que se hace necesario es sustituir los actuales tubos fluorescentes por tubo de LED con una calidad reconocida.
Existen instaladas 34 pantallas de 2x58W en planta baja y 24 pantallas de 2x58W en planta alta, lo que suma 58 pantallas. En el salón de reuniones existen 8 equipos fluorescentes de 58W y 4 equipos de 36W.
Potencia eléctrica de la instalación
La potencia eléctrica de la instalación de iluminación es la que sigue:
Planta baja
- 34 Uds. de 2x58W (encendido permanente)
- 7 Uds. lámparas incandescentes de 40W (encendido ocasional)
- 12 Uds. lámparas LED de 7W (encendido permanente)
- 4 proyectores de Cuarzo Yodo de 100W (encendido ocasional)
- 2 Downlhigt de 2x18W (encendido permanente)
- 2 lámparas fluorescentes de 18W (encendido permanente)
Lo que hace una suma de 4.816 W instalados.
Planta Alta
- 24 Uds de 2x58W (encendido permanente)
- 4 Uds de 2x58W (encendido ocasional)
- 2 Uds de 2x36W (encendido ocasional)
- 7 lámparas incandescentes de 40W (encendido ocasional)
- 7 dicroicas de 12V/50W (encendido ocasional)
- 2 proyectores de Cuarzo Yodo de 150W (encendido ocasional)
- 3 aparatos de cuarzo Yodo de 100W (encendido ocasional)
- 10 Downlhigt de 2x18W (encendido permanente.)
Lo que hace una suma de 4.982 W instalados.
TOTAL = 9.798 W.
Cantidad estimada de tubos Led Philips requeridos
Según lo anterior serán necesarias las siguientes unidades:
- 124 uds de tubos LED 4000K de 1500mm en sustitución de tubos fluorescentes de 58W
- 2 Uds. Tubos LED 4000K de 600mm en sustitución de tubos fluorescentes de 18W
- 4 Uds. Tubos LED 4000K de 1200mm en sustitución de tubos fluorescentes de 36W
Eficiencia energética
La sustitución de todos los tubos fluorescentes existentes por tubos LED supondrá una bajada de potencia de:
Actual:
- 124 x 58 = 7.192 W x 1,2 = 8.630 W
- 4 x 36 = 144 x 1,2 = 173 W
- 2 x 18 = 36 x 1,2 = 43 W
Lo que suma: 8.846 W
Previsto con LED (potencia aproximada):
- 124 x 25 = 3.100 W
- 4 x 16,5 = 66 W
- 2 x 12 = 24 W
Lo que suma: 3.190 W
La diferencia entre los 8.846 W instalados y los 3.190 W previstos, suponen una reducción de la potencia instalada de un 65,56%, lo que hace factible la sustitución.
¿Porqué Philips?
Por el valor añadido de contar con la garantía y experiencia de una gran marca.
Planos
Planta Baja

Planta Alta

FOTOGRAFÍAS



